想了解设备资料?报价?售后?请留言,速回电
厂家直销,留言立享本月优惠价免费提供环保政策、办厂手续、投资预算等资料

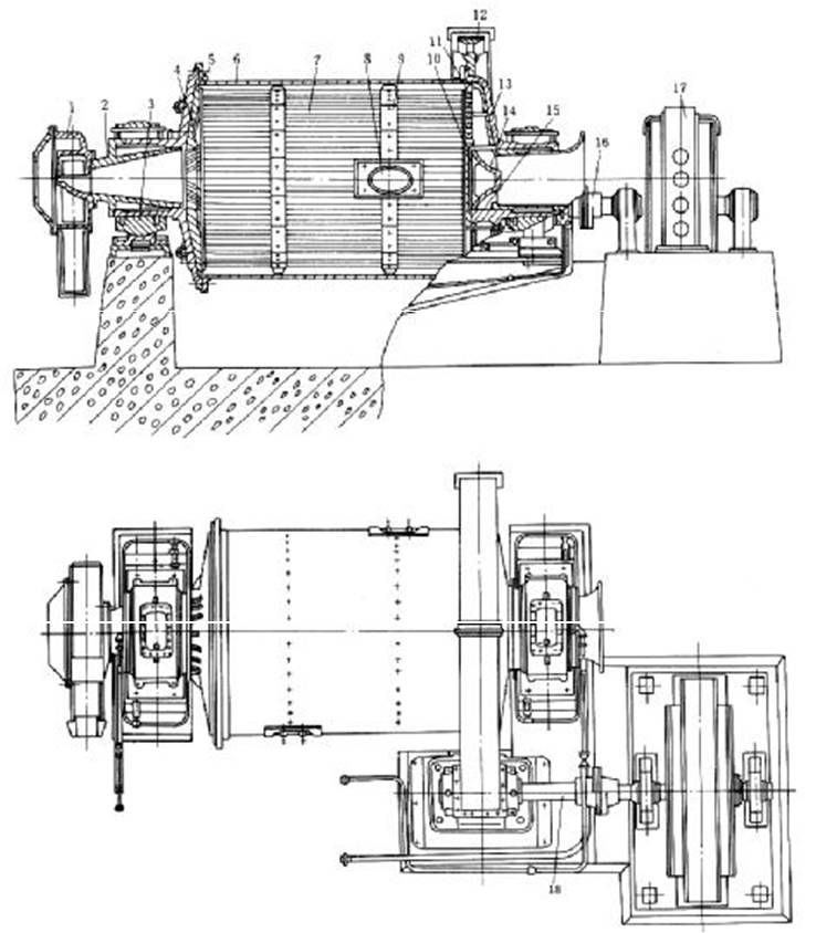
球磨机目前在市场上型号各异,每个产品的型号规格都不一样,但是,尽管球磨机的种类繁多,但是内部结构和原理都是相同的。今天就拿格子型球磨机结构为例,如下图1-7。

图 1-7 格子型球磨机
1-给料器;2-进料管;3-主轴承;4-扇形衬板;
5-端盖;6-筒体;7-筒体衬板;8-人孔;9-楔形压条;
10-中心衬板;11-排料格子板;12-大齿圈;13-端盖;
14-锥形体;15-楔铁;16-弹性联轴器;17-电动机;18-传动轴
球磨机主要由圆柱形筒体、衬板、隔仓板(多仓磨机才具备)、主轴承、进出料装置和传动系统等部分组成。
筒体(包括主轴承,见下图)

湿法球磨机的主轴承
1-轴承底盘;2-球面瓦座;3-定位销;4-球面瓦;5-轴承盖;6-螺钉
球磨机的筒体是球磨机主要工作部件之一。筒体工作时除承受研磨体的静载荷外,还受到研磨体的冲击,且筒体是回转的,所以筒体上产生的是交变应力。因此,它必须具有足够的强度和刚度。这就要求制造筒体的金属材料的强度要高,塑性要好,具有较好的机械性能和工艺性能才能保证磨机筒体的安全运行。
一般用于制造筒体的材料是普通结构钢,此种材料的强度、塑性、可焊性都能满足要求,随着工业的发展,磨机能力(产量)也向大型化发展,近来设计的大型磨机的筒体是用16Mn钢制造的。其弹性强度限比Q235的高约50%,耐蚀能力比Q235高50%,冲击韧性(尤其低温时)比Q235高得多。而且16Mn还具有良好的切削加工性、可焊性、耐磨性和耐疲劳性。所以16Mn是一种相当适宜的钢材。磨机运转时与长期停止时筒体的长度是不一样的。这是由于筒体温度不同引起热胀冷缩易导致球磨机筒体开裂。因此,在设计、安装与维护时都必须考虑到筒体的这一热胀冷缩特点。
一般磨机的卸料端靠近传动装置,为保证齿轮的正常啮合,在卸料端是不允许有任何轴向窜动的,故都是在进料端有适应轴向热变形的结构。
筒体的轴向热变形在球磨机结构上有两种考虑方法:一种是用中空轴颈的轴肩与轴承间的预留间隙(a、b)来考虑,如图1-11所示。另一种是在轴承座与底板之间水平安装数根钢棍。

图 1-11 球磨机筒体轴向热变形的预留间隙
如图1-12所示。当筒体热胀冷缩时,进料端主轴承底座可沿辊子移动。

图 1-12
筒体上每个仓都应开设一个磨门(又称人孔)。磨门的作用是镶换衬板、隔仓板,装填或倒出研磨体及停磨检查磨机仓内情况等。
球磨机的主轴承常用的是滑动轴承,其直径很大,但长度很短,如图1-10所示。轴瓦用巴氏合金浇铸。与一般滑动轴承不同之处在于仅仅下半部有轴瓦。整个轴承除轴瓦用巴氏合金浇铸外,其余都用铸铁制成。由于球磨机的跨度和载荷很大,将发生一定程度的挠曲,而且制造和装配的误差也难以保证准确的同轴度,因此,轴承制成自动调位型,球面瓦座2和球面瓦4之间以球心为旋转中心能够稍有相对移动,使作用于轴瓦上的载荷分布均匀。
球面瓦座2和球面瓦4之间还设有定位销,以限制球面瓦移动的范围。在安装时,可以用螺钉6调整球面瓦座2的位置。也有用斜楔调整的。主轴承是球磨机的一个关键部件,对于其润滑问题必须充分重视,一般都采用稀油集中循环润滑,小型机也有的采用油环润滑、油环滴油润滑或毛线润滑等方式。
球磨机价格详细垂询:0371-67772626
球磨机厂家地址:郑州-国家高新技术产业开发区檀香路8号
上一篇:对辊破碎机的工作原理与结构
下一篇:雷蒙磨(雷蒙磨粉机)概述
想了解设备资料?报价?售后?请留言,速回电
厂家直销,留言立享本月优惠价免费提供环保政策、办厂手续、投资预算等资料
3分钟前 高先生:时产200吨制砂机报个价,处理鹅卵石
8分钟前 李先生:移动式破碎机怎么解决粉尘问题?
13分钟前 徐女士:需要制砂机,南宁能看制砂现场吗?
16分钟前 程先生:破碎生产线出个方案及报价,有什么售后服务?
22分钟前 郑女士:想了解时产500吨锤破,加工石灰石
31分钟前 吴先生:成套石头破碎设备有吗?给个详细产品资料
36分钟前 罗先生:每小时100吨左右的鄂破和反击破,推荐下型号
42分钟前 梁先生:膨润土磨到200目,用什么磨粉设备?
提交留言我们会第一时间回复您!
水泥球磨机是水泥厂设备,水泥球磨机主要用于建材、冶金、电力及化工行业粉磨各种水泥熟料及其它物料。我公司可根据用户需要的产量、细度要求设计制造符合用户实际需要的水泥专用球磨机。
2018-05-11水煤浆作为一种液体燃料,便于燃烧、使用,其性质稳定且燃烧率达到98%以上,燃烧时排放量低、产品运输方便,在医院、学校、电厂、集中供电厂等领域有所应用。
2017-08-30市场上的球磨机品牌比较多,每个品牌下的实力水平、设备质量都是不同的,那么好的球磨机品牌是哪个呢?这是广大消费关注的焦点问题,接下来就由开元官方版网站登录入口机器小编为大家对这一问题进行简要阐述。
2017-05-09小型球磨机是厂家研制的一款规格比较小的磨矿设备,不仅体积大大缩小,重量也大大减轻,操控更加简单容易,可移动到任何加工厂进行生产运行,具有产量高、运行效率高、成本低等性能优势,颇受小规模加工厂的青睐与欢迎。
2017-03-06球磨机属于选矿类设备,它的功能与作用就是对各种物料实现磨矿作业,随着该设备应用范围的不断深入,它对物料种类的加工范围也是越来越宽泛,包括金属矿、非金属矿以及黑色金属等等,并且加工之后所呈现出的物料状态都能达到客户满意的效果。节能型球磨机是针对能源方面的过度消耗而新研制的一种设备,它不仅工作效率高,并且在节能环保领域能凸显该设备的具体优势,从市场上的销售量我们不难发现:该设备是功能性极强的设备,客户对它的评价相当高,这也是该设备有如此高销量的主要原因之一。
2016-07-28球磨机一般由筒体、端盖、轴承和传动大齿圈等部件组成。以下是开元官方版网站登录入口总结三种常见球磨机的工作原理,基本上都相似,其中有一些结构和磨矿方式等差异。
2009-07-11